Project Details:

Location:Spencer, IN

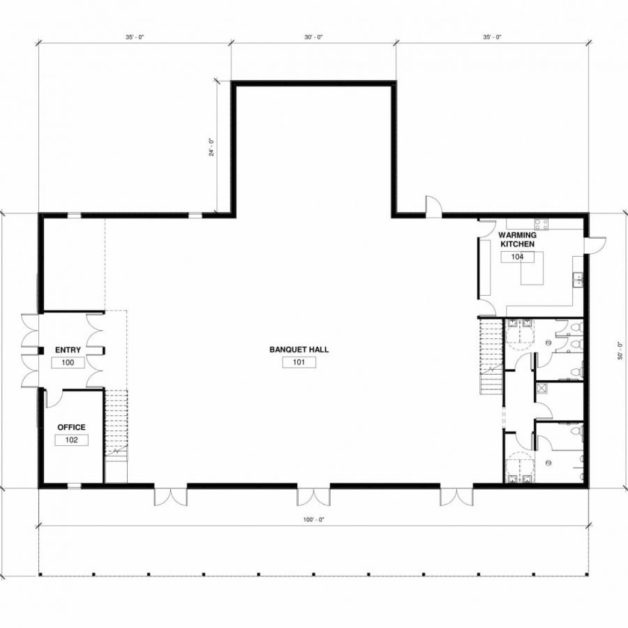
Dimensions:50' x 100' x14' | 30' x 24' x 12' | 16' x 100' x 9' Lean-to

Project #17717

Project Gallery

Floor Plans

-