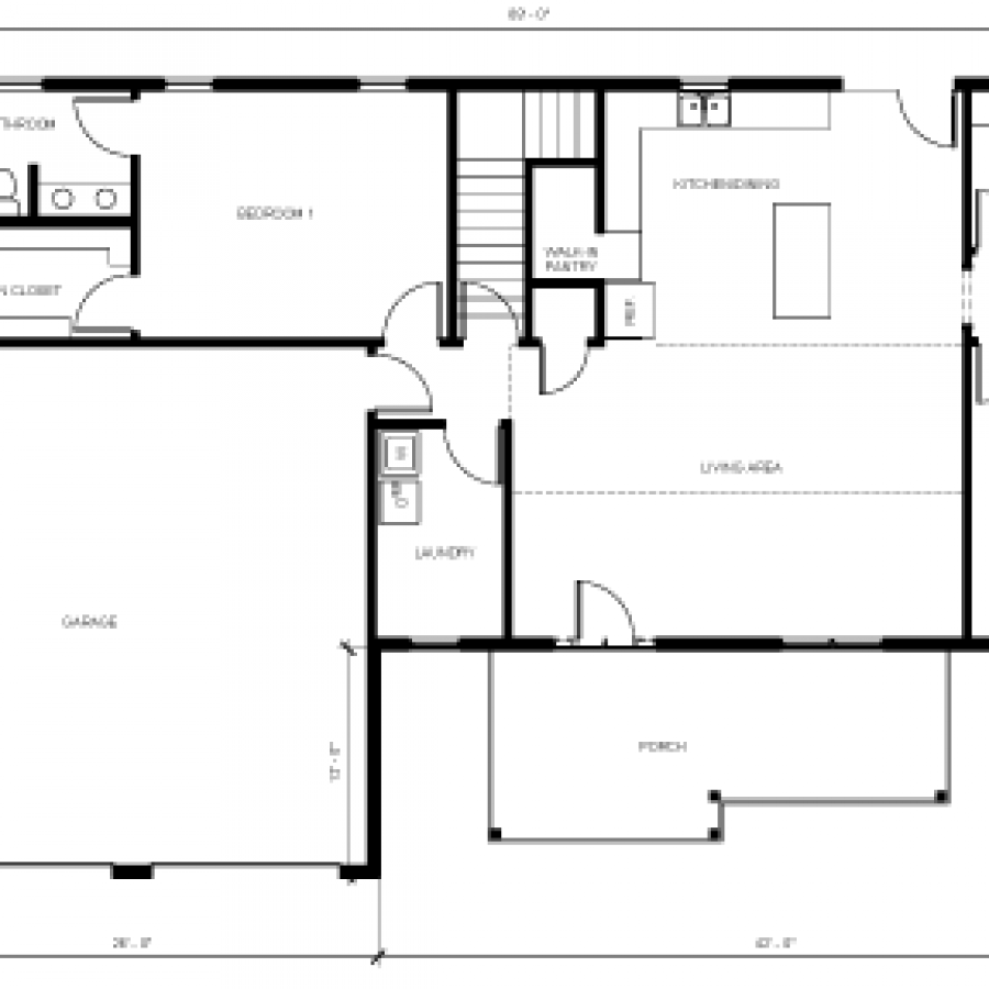
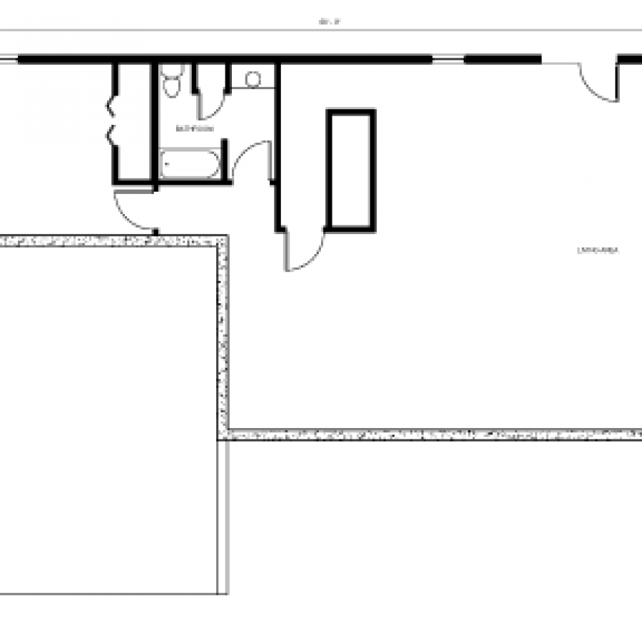
Project Details:

Location:Solsberry, IN

Dimensions:28'x26' Garage. 1624 Sqft living space.

Project #14978

Project Gallery

Floor Plans

-