Project Details:

Location:Bloomington, IN

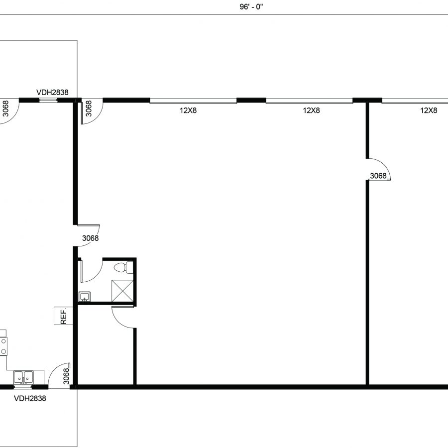
Dimensions:40' x 96' x 10' | 8' x 24' x 8 Porch (front) | 8' x 13' x 8' Porch (back)

Project #15800

Roof – White

Side – Charcoal

Trim – White

Wainscot – Versetta Stone (Cobblestone Beige Blend)

Customize this design and submit for a quote.

3D Model

Project Gallery

Floor Plans

-