Project Details:

Location:Mooresville, IN

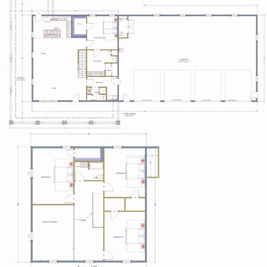
Dimensions:40' x 104' x 18' w/ Porch

Project #22524

Project Gallery

Floor Plans

-